Description de l'offre
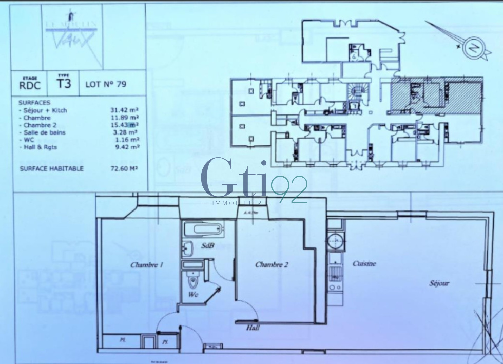
Résidence du Moulin de Vaux face à la Juine, dans cette résidence authentique et pleine de charme, vous trouverez en rez-de-chaussée, un 3 pièces de 76m2 comprenant entrée - une pièce de vie de 32m2 avec sa cuisine, deux chambres dont une de 15m2 et l'autre de 11m2 suivi d'un wc ind et de sa salle de bain. Un parking est inclus à l'extérieur. BIEN EXCLUSIVEMENT DEDIE A UN INVESTISSEUR. Déjà loué à une famille qui souhaite rester, loyer annuel de 9600€.
