
4 PIECES LUMINEUX AVEC BALCON, BEAU POTENTIEL
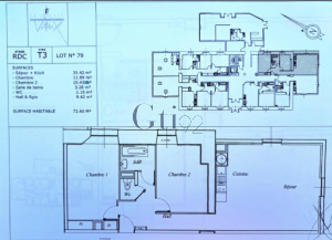
Appartement 66.73 m² - 4 Pièces - Le Plessis-Robinson
A 9 min à pied du T6, station "Soleil Levant", à deux pas du Panorama et de ses commerces. Résidence du Perrier, au 2ème étage sans ascenseur, un 4 pièces de 66,73m2 comprenant une entrée, une...